Home        About Us        Services        FAQ        Testimonials
Plan Your Project        Photo Gallery        Contact Us

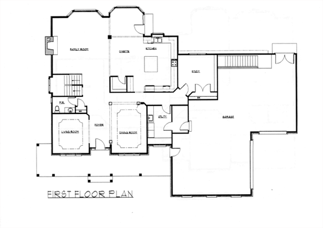
The Carter James - Plainfield, IL

The Carter James is a 4,500 square-foot custom home in Plainfield’s Rolling Acres that sold in May 2006.

Photo Gallery requires Flash Player 7.0 or Greater

> Download Flash Player

Carter James Elevation Drawing

Carter James 1st Floor Plan

Carter James 2nd Floor Plan